Trilocale in vendita

Tivoli, Strada degli Orti - Villa Adriana
€ 129.000
Prezzo aggiornato
3 locali 3 locali
109 Mq 109 Mq
1 bagno 1 bagno

Trilocale in vendita

Tivoli, Strada degli Orti - Villa Adriana

Descrizione annuncio

Paterno, trilocale ristrutturato!

In una delle zone più apprezzate di Villa Adriana, precisamente in località Paterno, proponiamo in vendita un appartamento completamente ristrutturato, situato al primo piano di una piccola palazzina tranquilla e rifinita in tinta.

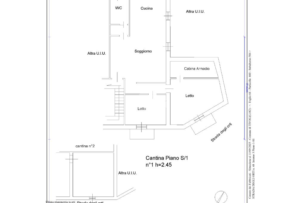
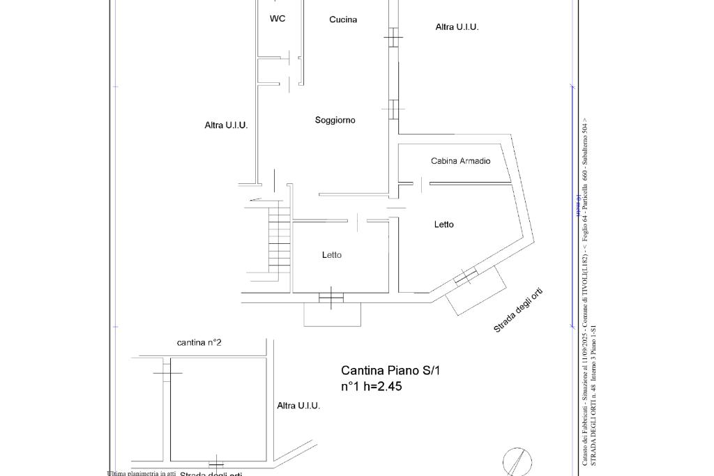
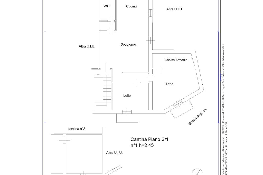
L’immobile, di circa 100 mq, accoglie con un ampio salone con angolo cottura, uno spazio conviviale e ben illuminato, pensato per il comfort quotidiano. Un pratico antibagno ospita una comoda zona lavanderia, mentre il bagno principale è moderno e rifinito con gusto. La zona notte si compone di due grandi camere da letto climatizzate, servite entrambe da un balcone dal quale è possibile godere di una piacevole vista su Tivoli.

Inoltre una delle due camere oltre allo sfogo esterno è dotata di una spaziosa cabina armadio, dove è possibile ricavare un secondo bagno esclusivo.

Infine a completare la soluzione troviamo al piano seminterrato un’ampia cantina di 20mq, un comodo spazio da adibire, a magazzino come lo è oggi, o in caso di necessità come studio privato.

Una soluzione ideale per chi cerca un appartamento pronto da abitare, con ambienti ampi e razionali, in una posizione comoda e ben collegata.

SE VOGLIAMO CAMBIARE IL MONDO POSSIAMO PROVARCI INSIEME, SE VOLETE CAMBIARE CASA CI PENSIAMO NOI!

Mostra tutto

Nelle vicinanze

Trasporto pubblico Trasporto pubblico
Tivoli
Tivoli
2,0 Km
Cotral bus stop to Rome
Cotral bus stop to Rome
630 m
Tiburtina, Altezza Vle Arnaldi
Tiburtina, Altezza Vle Arnaldi
1,0 Km
Ricariche auto elettriche Ricariche auto elettriche
Conad Superstore Tivoli | EnelX
650 m
Villa Adriana Parcheggio Via Val Gardena | EnelX
1,0 Km
EnelX EVA+ c/o +VISTA FABBRICA OCCHIALI
1,6 Km
Tivoli Viale Roma | EnelX
1,8 Km
Villanova Via Cavour | EnelX
2,3 Km
Scuole Scuole
Scuole
850 m
Scuola media statale Vincenzo Pacifici
990 m
Convitto Nazionale Amedeo di Savoia
1,3 Km
ist. Classico
1,4 Km
Istituto Comprensivo Tivoli Centro 2
1,6 Km
Farmacia Farmacia
Farmacia
1,6 Km
Renzo Poggi
1,7 Km
Caricari
1,8 Km
Farmacia Tornaghi
2,0 Km
Centro Analisi Villanova
2,0 Km
Ospedali Ospedali
Pronto Soccorso Ospedale "San Giovanni Evangelista"
1,7 Km
Ospedale San Giovanni Evangelista
1,8 Km
Supermercati Supermercati
Conad
660 m
Carrefour Market
1,7 Km
Todis
1,7 Km
Mielfrutta
2,0 Km
Carrefour
2,1 Km
Negozi Negozi
H24 Market Villa Adriana
1,0 Km
Bella moda
1,1 Km
Negozi
1,2 Km
Marianna
1,4 Km
Baby World
1,5 Km
Bar Bar
Bar
1,4 Km
Kraken Bar
1,7 Km
Ristoranti Ristoranti
King Sushi Wok
970 m
Natural Pizza
1,1 Km
L'Arte della Pizza
1,2 Km
La paninoteca ai portici di Nelly
1,4 Km
Taverna della Rocca
1,4 Km
Mostra tutto

Caratteristiche

Rif.:
61110894
Piano:
1 di 1 (Piano basso)
Balconi:
2
Camere da letto:
2
Arredamento:
Assente
Condizionamento:
Autonomo
Mostra tutto
Prezzo Prezzo
€ 129.000
Rata mutuo Rata mutuo
€ 608 / mese
Spese annue Spese annue
€ 512
Proponi il tuo prezzoProponi il tuo prezzo

Classe Energetica

G
G
G
G
G
G
G
G
G
Anno di costruzione:
1964
Riscaldamento:
Autonomo
Tipo impianto:
A radiatori
Tipo alimentazione:
Metano

Prezzo ridotto di €1 (8%%)

Ti interessa visionare l'immobile?

Fissa un appuntamento  Fissa un appuntamento

Richiedi informazioni

Clicca su Leggi per aprire l'informativa
* Questi campi sono obbligatori

Calcola il tuo mutuo

Semplice e senza impegno
Anticipo

( % )
Mutuo

( % )

pochi semplici passi

inserisci i tuoi dati
Questionario completato
Grazie per aver richiesto un appuntamento senza impegno con un nostro Consulente del Credito e Assicurativo.

Hai inserito correttamente tutti i dati necessari e a breve riceverai una e-mail con un link da convalidare per inviare i tuoi dati.
Affiliato
Immobiliare Villa Adriana Srl
Via Della Rosolina, 102 00019 Tivoli (RM)

Il nostro staff


  • Giorgia Panno
    Coordinatrice

  • Nicolò Graziano
    Affiliato
Via Della Rosolina, 102 00019 Tivoli (RM)
Zona: Villa Adriana
Mostra su mappa
Orari: 8:30 - 13:00 15:30 - 20:00
Affiliato
Immobiliare Villa Adriana Srl
Via Della Rosolina, 102 00019 Tivoli (RM)

2026 Tecnocasa Franchising S.p.A. - P. IVA 08365160152 - Via Monte Bianco 60/A 20089 Rozzano (MI). Ogni agenzia ha un proprio titolare ed è autonoma. Privacy policy | Policy utilizzo | Cookie policy